一、智慧信息屏概述
1.1智慧電子信息屏的概念與內容
首先,領導們在報社參觀學習過程中,對廣告信息屏等全新時代媒體及媒體融合的肯定。全新電子屏可以實現多種方式展現,圖片、視頻等更加生動形象可以實現市民的互動,查看自己關心的信息,并能將自己的想法反饋更換內容,管理更加方便,可以集中管理,節省人力物力,提高效率
再次,目前,戶外廣告機的款式多樣,可以根據使用的環境不同,選擇不同款式信息屏,很好的融合到周邊環境中。電子信息屏,都是通過4G網絡、WIFI或網線連接互聯網,快速更新內容,實現集中管理,并且實現全戶外標準。防水、防塵、耐高溫、耐低溫、并且帶觸摸,展現形式多樣。為建設 智慧城市增添一道亮麗風景線。
1.2智慧電子信息屏設計思想
城市是人類文明發展的產物,電子信息屏是城市的組成部分,也是宣傳廣告的重要組成部分。這個邏輯套用過來,傳統宣傳欄通過人工張貼通知、報紙等,即效率低又僅是單方向的信息傳達,不能實現互動。并且目前年輕人都是比較繁忙,基本不能駐足長時間閱讀文字。而 如果通過視頻方式傳遞信息,既能吸引市民觀看,又能提高信息獲取效率。因此,本電子信息屏的設計思想是:以智能電子信息屏作為基本單元,基于互聯網實現全面管理與服務,使智能電子信息屏擁有智慧生活和智慧服務的功能,成為創新型智慧景區的重要組成部分。
1.3智慧信息屏系統功能提要
(1)使市民都能夠享受智能家居帶來的安全、舒適、健康和便捷;
(2)為市民提供免費信息,內容豐富;
(3)為市民提供安全知識信息服務;
(4)高亮屏可播放傳播積極正能量宣傳片;
(5)點擊查詢地圖,查看附近的商場、餐飲、娛樂等服務。
二、電子信息屏的價值
2.1先進性:利用數字化的戶外LCD顯示屏,播放圖片、動畫、視頻等豐富多彩的海量內容,體現電子信息屏的先進性。
2.2時效性:精神文明宣傳、生活常識、新聞資訊、天氣資訊、疾病預防知識等貼近生活、貼近群眾的信息及時發布,也較為被群眾接受。
三、電子屏對運營商的價值
3.1運行穩定:設備出廠經過嚴格的防水、高溫、強光、老化等測試,
3.2廣告效果:內容以流媒體的展現形式,吸引市民的目光,使廣告效果最大化。
3.3精準投放:通過軟件后臺環境監控系統提供的數據,有效分析客戶群體并進行針對性的廣告投放。
3.4高效便捷:電子信息屏安裝維護簡單便捷,遠程信息發布有效降低人工成本。
四、戶外機機型
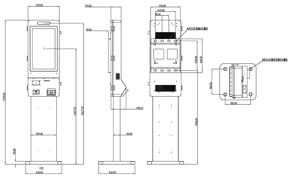
4.121.5英寸工業級高亮度液晶屏,顯示尺寸:476*268mm;
4.2亮度要求1500cd/㎡,帶環境自動光感、防護爆鋼化玻璃。
4.3內部結構按要求設計進行加強筋加固,整機結構牢固性可抗12級臺風,機器材質采用冷軋板,噴漆工藝采用雙層噴戶外粉,外觀采用新穎設計,可定制外觀,機器固定采用壁掛和落地式二用安裝方式,分別采取前開門和后開門進行維護設計。
4.4整機采用高品質散熱風扇散熱,加防雷、過載、過壓、過流、過溫保護設備、結構采用防雨、防塵、防太陽暴曬設計。
4.5功能需要:采用工業級嵌入式安卓主板、可支持Wifi、RJ45接口、可支持同時控制所有機器或單控某一臺,支持全高清1920x1080解碼。
五、戶外機特點
外觀時尚:標準款外殼,可根據客戶需求,專業設計高雅時尚的外殼,款式多樣,高檔非凡;
定時背光:支持10組時間段定時背光調控,方便易操作;
智能控溫:智能控溫系統,保持機身內部恒溫干燥環境,防止起霧、凝水現象;
防塵防水:整機密閉性設計,阻止外界粉塵、水進入內部,達到IP55標準;
防曬防爆:外殼為鍍鋅鋼板,經專用戶外粉烤漆、防水防曬、防腐蝕、防爆專業表面技術處理;可在戶外使用達10年不褪色;
6.1顯示模塊
(1)采用工業級高可靠模塊化設計,使用方便、美觀 、維護簡單方便、保護措施齊全。
(2)高分辯率、高對比度、高亮度、極大提高畫面層次感,能更好表現細節。
(3)具有自動消除殘影功能,防紫外線、對太陽光隔熱、自動光感綠色節能保護液晶屏的長期使用。
(4)具有黑電平延伸自適應功能,增強圖象景深層次感。
(5)采用工業級液晶屏,視頻圖像更加亮麗,立體感更強。
(6)16.7M色,畫面更加自然,細膩畫面真正無拖尾。
(7)具有智能溫控環保靜音 可靠性高,穩定性好,特別適合在惡劣的環境中工作。
(8)超長壽命,7*24小時不間斷工作,可達6萬小時以上。
6.2 查詢功能
采用G+G電容觸摸,十點觸控,精準度高。市屏可點擊查詢地圖導航,查詢附近商圈、餐飲等,增加豐富的智能體驗。
6.3 掃碼功能
支持手機二維碼掃描功能,為市民提供方便實用。
6.4 打印功能
58mm熱敏打印功能,打印二維碼和基本信息。
6.5人臉識別
寬動態雙目200W高清攝像頭。
6.4 讀卡功能
支持身份證讀取,IC卡讀寫功能。
6.4 話筒
支持語音通話功能
6.3電氣參數
(1)外殼材質全鍍鋅鋼板制柜體,外表面進口金屬漆,防磁、 防靜電、進口的防水材質,整機采用IP55防水,戶外全天候防水防塵,防盜、防爆等設計。
(2)高可靠電氣保護:漏電、過載、過壓保護、防雷保護裝置、過溫保護等。
(3)音響:采用雙聲道,立體聲環繞功放系統,輸出功率8歐2×10W。
(4)工作環境溫度設計標準+50°~ -30°,冷卻采用高品質組合風扇。
(5)防護玻璃:采用6mm鋼化玻璃。
(6)整機各個系統采用模塊化設計原則,可持續性、可維護性設計。
(7)機器固定方式:采用從地面澆筑多顆M12-16螺絲柱,穿插至機器底部加螺母固定。
(8)光感及過熱防護系統:屏幕背光采用自動環境光感應,實時調節屏幕亮度即滿足強陽光直射環境下的清晰圖像顯示,又讓屏幕在晚上不刺眼和能源浪費,當機器內部溫度超出液晶屏極限時熱管理系統將會第一時間響應關閉液晶屏,以保護液晶屏長期工作在惡劣環境中而不損壞。
6.4播放系統
1.播放內容
(1)利用數字化的戶外電子顯示屏,播放圖片、動畫、視頻等豐富多彩的海量內容,體現智慧交通宣傳的先進性。
(2)播放活潑、生動的視頻內容增加宣傳內容的趣味性,還可增加觸摸功能,與市民進行互動,吸引民眾,形成有效的溝通。
6.5溫控系統





